Woningomschrijving
TOP WONING!
Zeer ruim 2-kamerappartement met entresol van circa 96m2 gelegen op de 3e verdieping met veel lichtinval en gezellige details!
OMGEVING:
De woning is gelegen aan de achterzijde van de Sarphatistraat, een leuke locatie in het centrum van Amsterdam, ter hoogte van Artis. Het openbaar vervoer is in ruime mate beschikbaar voor u. Tram 1, 7 en 19 stoppen op 5 minuten lopen. Het metrostation is ook op enkele minuten lopen en diverse buslijnen brengen u naar alle delen van de stad. Met de fiets bent u in een mum van tijd op de populaire uitgaanspleinen.
INDELING:
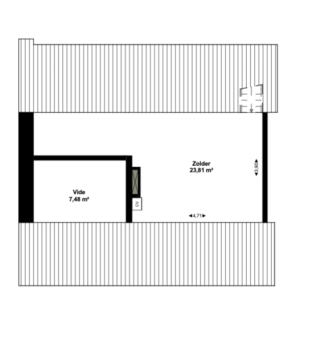
Via het gemeenschappelijk trappenhuis naar de derde verdieping; entree, hal, slaapkamer aan de achterzijde, de badkamer voorzien van een douche en een wasmachine aansluiting, aan de voorzijde de grote woonkamer met een open keuken (voorzien van een standaard keukenblok) en met toegang tot een entresol.
Aparte berging gelegen in de onderbouw.
BIJZONDERHEDEN:
- De woning wordt verhuurd "as is";
- Geen verhuur aan studenten!;
- De servicekosten bedragen circa €. 37,97 per maand;
- Garantstellingen worden niet geaccepteerd;
- De inkomenseis is: het (gezamenlijk) NETTO maandinkomen moet minimaal 2,5x de maandhuur bedragen;
- 1500,- EUR waarborg;
- De woning mag door maximaal 2 VOLWASSENEN bewoond worden (kinderen zijn welkom);
- De huur is exclusief gas, water en licht;
- Uittreksel bevolkingsregister is verplicht in het aanvraagdossier;
- Verhuurder rekent eenmalig € 16,50 contractkosten;
- Alle maten op de plattegrond zijn indicatief;
- Oplevering per direct, verhuur voor minimaal een jaar;
- De verhuurder/onze opdrachtgever kan zelf kiezen met welke partij zij een huurcontract afsluit (contractvrijheid). Zij kan er ook voor kiezen om geen huurcontract af te sluiten.
--------------------------------------------------------------------------------------------------------------------------------------------------
ENGLISH TRANSLATION:
Please note our terms & conditions first!
PLEASE NOTE:
- The house is rented "as is";
- No students allowed;
- The monthly service costs are € 37,97 each month;
- No financial guarantees allowed;
- Your (combined) monthly NET income has to be at least 2,5 times the rent;
- 1500,- EUR as warrant;
- Maximum of two adults (children are welcome);
- Gas, water and electricity are excluded;
- Available immediately, contract of a one year minimum;
- Excerpt of population register needed for application;
- All measurements on the floor plan are indicative;
- The land lord charges one-time € 16,50 contract costs;
- The landlord/our client can choose with which party to sign a rental agreement (freedom of contract). They can also choose not to sign a lease.
!!No exceptions will be made!!
