Woningomschrijving
TOP WONING MET TUIN IN OUD-WEST!
Fantastisch centraal gelegen 4-kamer appartement van ca. 100m2 gelegen op de begane grond en eerste verdieping. De woning beschikt over een tuin!
OMGEVING:
Het appartement is gelegen in de populaire wijk De Baarsjes. In de straat en in de omgeving zijn er vele winkels en speciaalzaken en ook leuke, hippe eetgelegenheden zoals Bar Baarsch, Radijs, Bar Frits en Café Cook. Op steenworp afstand liggen twee heerlijke parken; het Rembrandtpark en het Erasmuspark. Daarnaast bent u met de auto binnen een mum van tijd vanaf de Jan Evertsenstraat op de ring van Amsterdam. Station Sloterdijk en Station Lelylaan liggen op fietsstand, maar zijn ook goed bereikbaar met openbaar vervoer. Meerdere tramhaltes zijn op loopafstand gelegen.
INDELING:
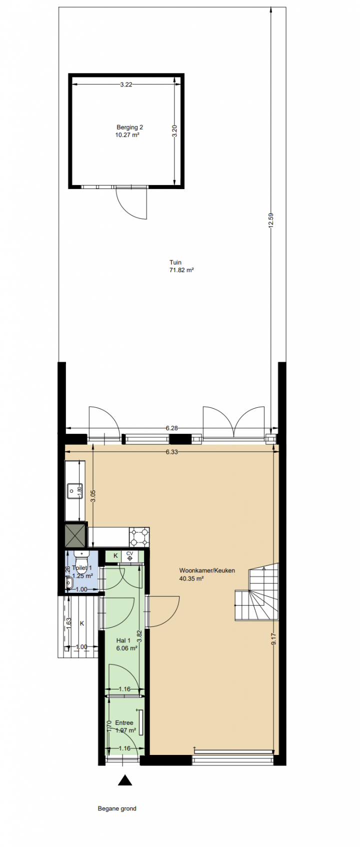
Entree op begane grond; de woonkamer aan de voorzijde, open keuken voorzien van een standaard keukenblok aan de achterzijde met toegang tot de tuin, een separaat toilet met een fonteintje, interne trap naar de eerste verdieping.
Eerste verdieping; overloop, een slaapkamer aan de achterzijde met toegang tot het balkon, de badkamer voorzien van een wastafel en een douche, een separaat toilet, inpandige berging en twee slaapkamers aan de voorzijde.
Berging gelegen in de tuin.
BIJZONDERHEDEN:
- De woning wordt verhuurd "as is";
- Geen verhuur aan studenten!;
- De servicekosten bedragen circa €. 5,31 per maand;
- Garantstellingen worden niet geaccepteerd;
- De inkomenseis is: het (gezamenlijk) NETTO maandinkomen moet minimaal 2,5x de maandhuur bedragen;
- 1500,- EUR waarborg;
- De woning mag door maximaal 2 VOLWASSENEN bewoond worden (kinderen zijn welkom);
- De huur is exclusief gas, water en licht;
- Uittreksel bevolkingsregister is verplicht in het aanvraagdossier;
- Verhuurder rekent eenmalig € 16,50 contractkosten;
- Alle maten op de plattegrond zijn indicatief;
- Oplevering per direct, verhuur voor minimaal een jaar;
- De verhuurder/onze opdrachtgever kan zelf kiezen met welke partij zij een huurcontract afsluit (contractvrijheid). Zij kan er ook voor kiezen om geen huurcontract af te sluiten.
--------------------------------------------------------------------------------------------------------------------------------------------------
ENGLISH TRANSLATION:
Please note our terms & conditions first!
PLEASE NOTE:
- The house is rented "as is";
- No students allowed;
- The monthly service costs are €5,31 each month;
- No financial guarantees allowed;
- Your (combined) monthly NET income has to be at least 2,5 times the rent;
- 1500,- EUR as warrant;
- Maximum of two adults (children are welcome);
- Gas, water and electricity are excluded;
- Available immediately, contract of a one year minimum;
- Excerpt of population register needed for application;
- All measurements on the floor plan are indicative;
- The land lord charges one-time € 16,50 contract costs;
- The landlord/our client can choose with which party to sign a rental agreement (freedom of contract). They can also choose not to sign a lease.
!!No exceptions will be made!!
