Woningomschrijving
CHARMANT APPARTEMENT!
Fijn 5-kamer appartement van ca. 109m2 met een eigen entree vanaf de begane grond!
Omgeving:
Deze woning ligt in het pittoreske Vogeldorp, met talloze voorzieningen op loopafstand. De metro Noord/Zuidlijn brengt je in één halte naar hartje Centraal. Ook de veerboten naar Amsterdam Centraal en het KNSM-eiland zijn dichtbij. Voor boodschappen en gezelligheid hoef je niet ver te gaan; de Jumbo Foodmarkt en Dirk van den Broek liggen op nog geen 5 minuten wandelafstand. Winkelcentrum Boven 't Y, het Mosplein en de markt aan de Van der Pekstraat zijn op nog geen 5 minuten fietsafstand. Sportievelingen kunnen tennissen bij Elzenhagen of een rondje hardlopen in het naastgelegen 't Vliegenbos.
Indeling:
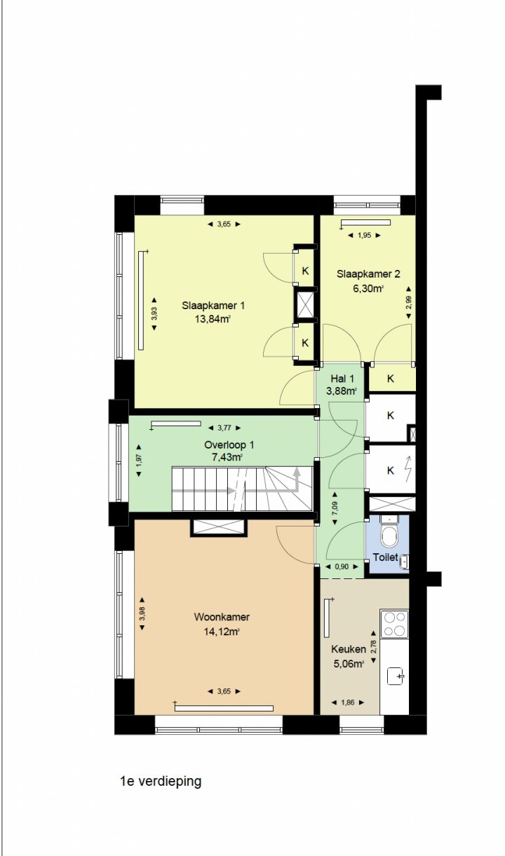
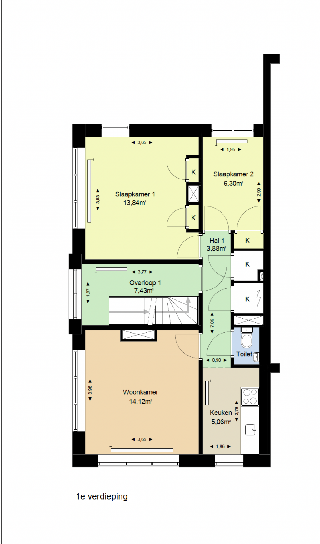
Entree op de begane grond, met de trap naar de eerste verdieping; woonkamer en de dichte keuken voorzien van een standaard keukenblok, een separaat toilet met een fonteintje en twee slaapkamers aan de achterzijde, via de interne trap naar de tweede verdieping.
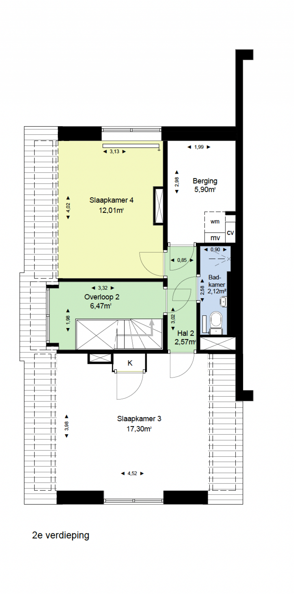
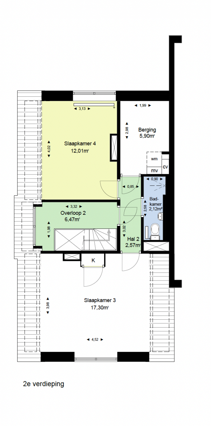
Tweede verdieping: Overloop, een slaapkamer aan de voorzijde, de badkamer is voorzien van een douche, een wastafel en een tweede toilet, een slaapkamer en de inpandige berging aan de achterzijde.
BIJZONDERHEDEN:
- De woning wordt verhuurd "as is";
- Geen verhuur aan studenten!;
- De servicekosten bedragen circa €. 5,31 per maand;
- Garantstellingen worden niet geaccepteerd;
- De inkomenseis is: het (gezamenlijk) NETTO maandinkomen moet minimaal 2,5x de maandhuur bedragen;
- - EUR waarborg;
- De woning mag door maximaal 2 VOLWASSENEN bewoond worden (kinderen zijn welkom);
- De huur is exclusief gas, water en licht;
- Uittreksel bevolkingsregister is verplicht in het aanvraagdossier;
- Verhuurder rekent eenmalig € 16,50 contractkosten;
- Alle maten op de plattegrond zijn indicatief;
- Oplevering per direct, verhuur voor minimaal een jaar;
- De verhuurder/onze opdrachtgever kan zelf kiezen met welke partij zij een huurcontract afsluit (contractvrijheid). Zij kan er ook voor kiezen om geen huurcontract af te sluiten.
--------------------------------------------------------------------------------------------------------------------------------------------------
ENGLISH TRANSLATION:
Please note our terms & conditions first!
PLEASE NOTE:
- The house is rented "as is";
- No students allowed;
- The monthly service costs are € 5,31 each month;
- No financial guarantees allowed;
- Your (combined) monthly NET income has to be at least 2,5 times the rent;
- EUR as warrant;
- Maximum of two adults (children are welcome);
- Gas, water and electricity are excluded;
- Available immediately, contract of a one year minimum;
- Excerpt of population register needed for application;
- All measurements on the floor plan are indicative;
- The land lord charges one-time € 16,50 contract costs;
- The landlord/our client can choose with which party to sign a rental agreement (freedom of contract). They can also choose not to sign a lease.
!!No exceptions will be made!!
