Woningomschrijving
TOP WONING!
Royaal vijf-kamer appartement van 105 m2 gelegen op de vierde en vijfde verdieping op een top locatie in het centrum van Amsterdam!
OMGEVING:
De woning is gelegen op de Zoutkeetsgracht, één van de leukste locaties van Amsterdam, met uitzicht op het Realeneiland. Je stapt de deur uit en staat midden in het stadse leven. Het openbaar vervoer is in ruime mate beschikbaar. Het Centraal Station is op circa 10 minuten lopen en diverse buslijnen brengen jou naar alle delen van de stad. Met de fiets ben jij in een mum van tijd op de populaire uitgaanspleinen.
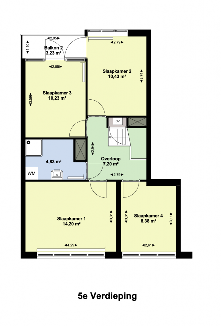
INDELING:
Via het gemeenschappelijk trappenhuis naar de vierde verdieping: entree, woonkamer met een open keuken en een balkon gelegen op het zuiden, interne trap naar de vijfde verdieping.
Vijfde verdieping: overloop, twee slaapkamers aan de voorzijde, de badkamer is voorzien van een douche en een wastafel, twee slaapkamers aan de achterzijde met toegang tot het balkon.
Berging gelegen in de onderbouw.
BIJZONDERHEDEN:
- De woning wordt verhuurd "as is";
- Geen verhuur aan studenten!;
- De servicekosten bedragen circa €.11,94 per maand;
- Garantstellingen worden niet geaccepteerd;
- De inkomenseis is: het (gezamenlijk) NETTO maandinkomen moet minimaal 2,5x de maandhuur bedragen;
- 1500,- EUR waarborg;
- De woning mag door maximaal 2 VOLWASSENEN bewoond worden (kinderen zijn welkom);
- De huur is exclusief gas, water en licht;
- Uittreksel bevolkingsregister is verplicht in het aanvraagdossier;
- Verhuurder rekent eenmalig € 16,50 contractkosten;
- Alle maten op de plattegrond zijn indicatief;
- Oplevering per direct, verhuur voor minimaal een jaar;
- De verhuurder/onze opdrachtgever kan zelf kiezen met welke partij zij een huurcontract afsluit (contractvrijheid). Zij kan er ook voor kiezen om geen huurcontract af te sluiten.
--------------------------------------------------------------------------------------------------------------------------------------------------
ENGLISH TRANSLATION:
Please note our terms & conditions first!
PLEASE NOTE:
- The house is rented "as is";
- No students allowed;
- The monthly service costs are € 11,94 each month;
- No financial guarantees allowed;
- Your (combined) monthly NET income has to be at least 2,5 times the rent;
- 1500,- EUR as warrant;
- Maximum of two adults (children are welcome);
- Gas, water and electricity are excluded;
- Available immediately, contract of a one year minimum;
- Excerpt of population register needed for application;
- All measurements on the floor plan are indicative;
- The land lord charges one-time € 16,50 contract costs;
- The landlord/our client can choose with which party to sign a rental agreement (freedom of contract). They can also choose not to sign a lease.
!!No exceptions will be made!!
