Woningomschrijving
TOP WONING!
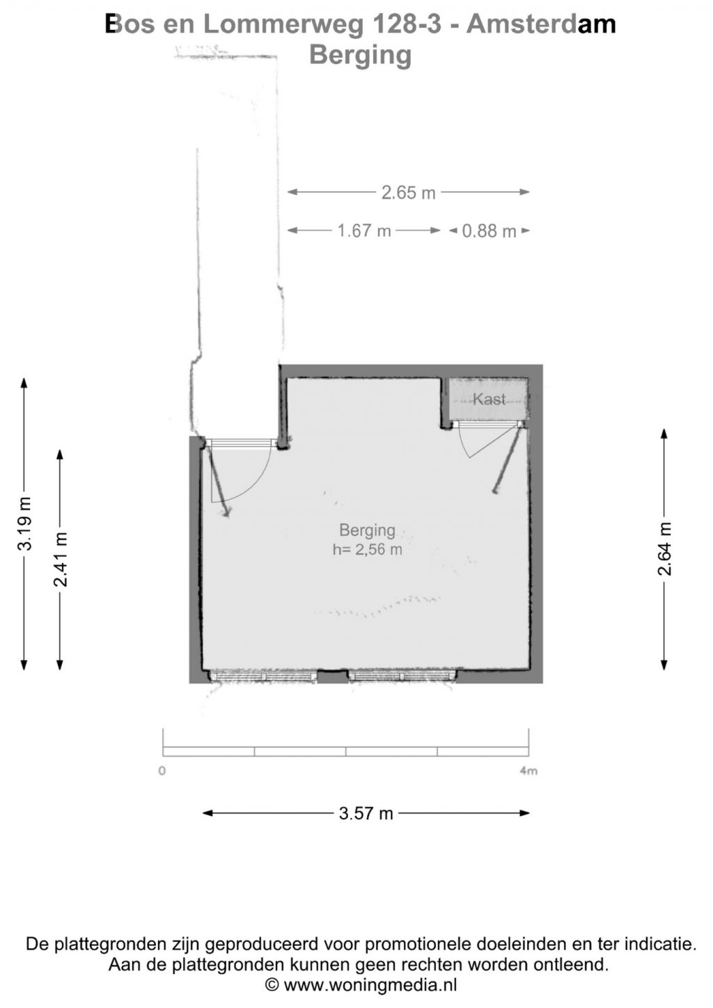
Ruim 4-kamer appartement van ca 57m2 gelegen op de bovenste woonlaag met een heerlijk balkon en een berging op de zolderverdieping. De woning is gelegen op een centrale locatie in het hippe Bos & Lommer!
Omgeving:
De woning ligt op een leuke locatie aan de gezellige Bos en Lommerweg waar diverse winkels zijn voor je dagelijkse boodschappen. De buurt is volop in beweging met om de hoek de Admiraal de Ruijterweg en Jan van Galenstraat met gezellige cafés en restaurant en natuurlijk het Terrasmus in het Erasmuspark waar je terecht kunt voor heerlijke broodjes, sapjes en tal van culturele en muzikale activiteiten. Natuurlijk is ook de Jordaan op slechts een paar minuten fietsafstand waar onder andere de markt op de Westerstraat en de markt op de Lindengracht en de ontelbare cafés en restaurantjes zijn.
Zeer goed bereikbaar met auto (A2, A4, A5 en A9) (2 minuten vanaf Ring A10 West, afrit 4/5) en openbaar vervoer: bussen 15 (Sloterdijk/Station Zuid) en 21 (Amsterdam CS/Geuzenveld) en tram 7 (Slotermeer/Azartplein) stoppen vrijwel voor de deur. De NS stations Amsterdam Lelylaan en Amsterdam Sloterdijk bevinden zich op circa tien minuten fietsafstand.
Indeling:
Via het gemeenschappelijk trappenhuis naar de derde verdieping; entree, de woonkamer is gelegen aan de voorzijde, een separaat toilet met een fonteintje, dichte keuken met toegang tot het balkon op het westen, twee slaapkamers gelegen aan de achterzijde, waarvan één met toegang tot de de badkamer voorzien van een douche en een wastafel en een slaapkamer gelegen aan de voorzijde.
Bijzonderheden:
- Heerlijk balkon gelegen op het westen;
- Gelegen op een zeer centrale locatie in de populaire wijk Bos & Lommer;
- Gezonde en professioneel beheer VvE. De servicekosten bedragen ca. €. 174,67 per maand;
- De erfpachtcanon is afgekocht tot 01-01-2056;
- Verkoper verkoopt met een antispeculatiebeding van 2 jaar;
- Vaste project notaris: Spier en Hazenberg notarissen;
- Clausule eigen bewoning van toepassing. Ouders mogen wel voor hun kinderen kopen!;
- Verkoper heeft het object zelf nooit feitelijk bewoond;
- Oplevering in overleg, kan spoedig;
- De plattegrond betreft een indicatie van het appartement. Aan de opgegeven maten kunnen geen rechten worden ontleend.
