Woningomschrijving
Royaal en vooral licht vier-kamer appartement van circa 89 m² gelegen op de derde (tevens bovenste) verdieping met balkon en de vrijheid om dit huis volledig naar eigen smaak in te richten, dit is jouw kans!
***English version below***
De woning ligt op een geliefde plek in het hippe Amsterdam-Oost, op loopafstand van de Javastraat, winkelcentrum Brazilië en de Dappermarkt. In de directe omgeving vind je een breed aanbod aan restaurants en cafés zoals: De Harbour Club, Restaurant Wilde Zwijnen, het Pompstation en de Krux brouwerij. Ook recreatief zit je hier goed, het Flevopark en het Flevoparkbad liggen op korte loopafstand. De bereikbaarheid is uitstekend. Bus 22 en 65 en de tramhalte liggen om de hoek, NS-station Muiderpoort is binnen 10 minuten bereikbaar. Met de auto ben je via de Ring A10 snel de stad uit. Voldoende parkeergelegenheid in de directe omgeving met vergunning voor bewoners (betaald parkeren).
Indeling:
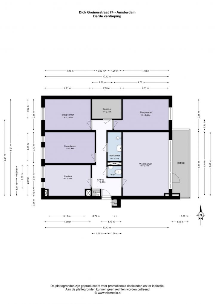
Via het gemeenschappelijke en ruim opgezette trappenhuis kom je op de derde verdieping. De hal biedt ruimte voor een garderobe en geeft toegang tot alle vertrekken. De ruime woonkamer geeft toegang tot het aangrenzende terras. Dit ruime terras van ruim 8 m² heeft een oost ligging.
De gesloten keuken aan de voorzijde is bijzonder goed van formaat zodat je hier met gemak een eethoek kunt plaatsen. De keuken is voorzien van alle aansluitingen, hier kun je de keuken van je dromen realiseren.
Aan de achterzijde bevinden zich twee slaapkamers, beide goed van formaat en met ruimte voor een tweepersoonsbed evenals een goede kledingkast. De derde slaapkamer is in het midden gesitueerd en zou geschikt zijn als werkkamer/kastenkamer of een extra slaapkamer.
De sanitaire ruimtes (separaat toilet en badkamer) zijn bereikbaar vanuit de hal. De badkamer is uitgevoerd met een witte wandtegel en is voorzien van een inloopdouche, wastafel en de wasmachineaansluiting.
Het appartement beschikt nog over een ruime eigen berging en een cv-kast direct naast de entree.
Berging:
De woning beschikt over een berging van ca. 5,5 m², gelegen in de onderbouw.
VvE:
De woning maakt deel uit van een actieve VvE. De maandelijkse servicekosten voor de woning bedragen € 213,70 en bevat o.a. een bijdrage voor de opstalverzekering en sparen voor toekomstig onderhoud.
Grond:
De woning is gelegen op gemeentelijke erfpachtgrond. De canon is afgekocht tot en met 30-04-2051. Op dit recht zijn de algemene erfpachtbepalingen van het jaar 2000 van toepassing.
Bijzonderheden
- Per direct beschikbaar;
- Woonoppervlakte: ca. 89 m² (meetrapport aanwezig);
- Voormalige huurwoning van De Key;
- Bouwjaar 1988;
- Project notaris, Spier en Hazenberg notarissen;
- Anti-speculatiebeding van 2 jaar van toepassing;
- Niet-zelfbewoningsclausule van toepassing;
- Gehele woning is voorzien van dubbel glas;
- Geheel naar eigen smaak te verbouwen;
- Uitsluitend te koop voor zelfbewoning (of ouders voor kinderen);
- Actieve VvE, maandelijkse servicekosten € 213,70;
- Erfpacht afgekocht tot en met 30-04-2051;
- Parkeren: vergunningenstelsel op de openbare weg. Voor meer informatie kijk op website van de gemeente Amsterdam;
- Voorrangregeling voor sociale huurders niet van toepassing, voor meer informatie verwijzen wij je door naar de website van woonstichting Lieven de Key;
- Oplevering kan snel.
Hebben wij jouw interesse ook gewekt?
Dan nodigen we je graag uit deze woning eens van binnen te bekijken.
Deze informatie is door ons met de nodige zorgvuldigheid samengesteld. Onzerzijds wordt echter geen enkele aansprakelijkheid aanvaard voor enige onvolledigheid, onjuistheid of anderszins, dan wel de gevolgen daarvan. Alle opgegeven maten en oppervlakten zijn slechts indicatief.
De Meetinstructie is gebaseerd op de BBMI. De Meetinstructie is bedoeld om een meer eenduidige manier van meten toe te passen voor het geven van een indicatie van de gebruiksoppervlakte. De Meetinstructie sluit verschillen in meetuitkomsten niet volledig uit, door bijvoorbeeld interpretatieverschillen, afrondingen of beperkingen bij het uitvoeren van de meting.
De in deze presentatie opgenomen afbeeldingen zijn met behulp van kunstmatige intelligentie gegenereerd en dienen uitsluitend ter illustratie. Aan deze afbeeldingen kunnen geen rechten worden ontleend. De getoonde inrichting, afwerking, indeling en aankleding kunnen afwijken van de werkelijke situatie en zijn niet bindend. Deze beelden maken geen onderdeel uit van de koopovereenkomst en kunnen niet worden aangemerkt als een toezegging, garantie of verplichting van verkoper of verkopend makelaar. Verkoper en verkopend makelaar aanvaarden geen enkele aansprakelijkheid voor eventuele onjuistheden, onvolledigheden of interpretaties die voortvloeien uit het gebruik van deze afbeeldingen.
***English version***
Spacious and bright four-room apartment of approximately 89 m² located on the third (top) floor with a balcony and the freedom to decorate this home entirely to your own taste. This is your chance!
The property is located in a popular area in trendy Amsterdam-Oost, within walking distance of Javastraat, Brazilië shopping center, and Dappermarkt. In the immediate vicinity, you will find a wide range of restaurants and cafés such as: De Harbour Club, Restaurant Wilde Zwijnen, het Pompstation, and the Krux brewery. It is also a great place for recreation, with the Flevopark and the Flevoparkbad swimming pool a short walk away. Accessibility is excellent. Bus lines 22 and 65 and the tram stop are around the corner, and Muiderpoort railway station is less than 10 minutes away. By car, you can quickly leave the city via the A10 ring road. There is ample parking in the immediate vicinity with permits for residents (paid parking).
Layout:
The communal and spacious staircase leads to the third floor. The hall offers space for a wardrobe and provides access to all rooms. The spacious living room provides access to the adjoining terrace. This spacious terrace of over 8 m² faces east.
The closed kitchen at the front is particularly spacious, so you can easily place a dining area here. The kitchen is equipped with all connections, so you can create the kitchen of your dreams.
At the rear are two bedrooms, both of a good size and with space for a double bed and a good wardrobe. The third bedroom is located in the middle and would be suitable as a study/closet room or an extra bedroom.
The sanitary areas (separate toilet and bathroom) are accessible from the hall. The bathroom has white wall tiles and is equipped with a walk-in shower, sink, and washing machine connection.
The apartment also has a spacious private storage room and a central heating cupboard right next to the entrance.
Storage room:
The property has a storage room of approx. 5.5 m², located in the basement.
Homeowners' association:
The property is part of an active homeowners' association. The monthly service costs for the property are €213.70 and include a contribution to the building insurance and savings for future maintenance.
Land:
The property is located on municipal leasehold land. The ground rent has been bought out until April 30, 2051. The general leasehold provisions of the year 2000 apply to this right.
Details
- Available immediately;
- Living area: approx. 89 m² (measurement report available);
- Former rental property of De Key;
- Built in 1988;
- Project notary, Spier and Hazenberg notaries;
- Anti-speculation clause of 2 years applies;
- Non-owner-occupancy clause applies;
- Entire home has double glazing;
- Can be renovated entirely to your own taste;
- For sale for owner-occupancy only (or parents for children);
- Active homeowners' association, monthly service costs €213.70;
- Ground lease purchased until April 30, 2051;
- Parking: permit system on public roads. For more information, visit the website of the municipality of Amsterdam;
- Priority scheme for social tenants does not apply. For more information, please visit the website of the Lieven de Key housing association;
- Delivery can be arranged quickly.
Have we piqued your interest?
Then we would like to invite you to come and view this property.
This information has been compiled by us with the necessary care. However, we accept no liability whatsoever for any incompleteness, inaccuracy, or otherwise, or the consequences thereof. All specified sizes and surface areas are indicative only.
The Measurement Instruction is based on the BBMI. The Measurement Instruction is intended to apply a more uniform method of measurement to provide an indication of the usable area. The Measurement Instruction does not completely rule out differences in measurement results, for example due to differences in interpretation, rounding off or limitations in performing the measurement.
The images included in this presentation were generated using artificial intelligence and are for illustrative purposes only. No rights can be derived from these images. The furnishings, finishes, layout, and decoration shown may differ from the actual situation and are not binding. These images do not form part of the purchase agreement and cannot be considered a commitment, guarantee, or obligation of the seller or the selling agent. The seller and the selling agent accept no liability for any inaccuracies, incompleteness, or interpretations resulting from the use of these images.
