Woningomschrijving
Wonen op een toplocatie nabij de Sloterplas? Dit heerlijke ruime 3-kamer appartement is geheel naar eigen smaak in te richten en is direct beschikbaar!
***English version below***
Indeling:
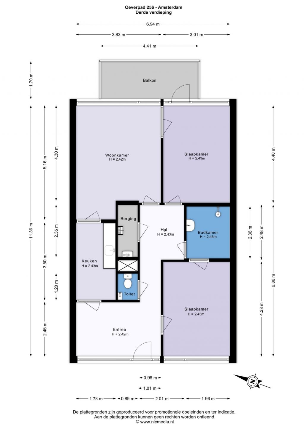
Via de lift kom je op de brede galerij op de derde verdieping. De ruime entree biedt toegang tot alle vertrekken van de woning, je zou hier ook nog een extra kamer kunnen creëren. De woonkamer is ruim en ligt aan de balkonzijde, het ruime balkon is gericht op het noordoosten, waar je kunt genieten van de ochtendzon. De keuken is aan twee kanten te betreden en is voorzien van alle nodige aansluitingen. Beide slaapkamers zijn erg ruim en tussen de slaapkamers in bevindt zich de badkamer met een inloopdouche, wastafel en toilet. In de hal is naast het separaat toilet ook een was/stookruimte aanwezig. De ruime berging bevindt zich in onderbouw.
Omgeving:
Gelegen op steenworp afstand van de Sloterplas waar je heerlijk kunt wandelen, hardlopen, picknicken, zwemmen én diverse watersporten beoefenen. Ook het Sloterparkbad, met buitenzwembad én hotspot Strand Sloterplas zijn hier te vinden. Om te sporten hoef je ook niet ver weg, Sportpark Ookmeer is vlakbij, waar je diverse sporten kunt beoefenen o.a. voetbal en tennis. Ernaast is een manege. Op loopafstand ligt het winkelcentrum Osdorpplein met diverse restaurantjes, supermarkten, de bibliotheek, een Hema, heerlijke koffie én een fitnesscentrum. Hier bevindt zich ook theater de Meervaart.
De woning is zeer goed bereikbaar met zowel OV als auto. Tramlijn 17 is vijf minuten lopen vanaf de woning óf slechts twee minuten fietsen. Buslijnen 61 en 69 (Schiphol Plaza) zijn op loopafstand, je bent binnen 25 minuten op Schiphol. Met de auto ben je zo op de A4, A9 of A10.
VvE:
De woning maakt deel uit van een actieve VvE. De maandelijkse servicekosten bedragen €136,85 voor de woning en € 6,37 voor de berging p.m. en bevatten o.a. een bijdrage voor de opstalverzekering en sparen voor toekomstig onderhoud. De administratie wordt verzorgd door VvE Beheer Amsterdam. Relevante stukken zijn op aanvraag beschikbaar.
Erfpacht:
De woning is gelegen op gemeentelijke erfpachtgrond, de canon is afgekocht tot 1 september 2048.
Berging:
Ruime berging bevindt zich in de onderbouw ca. 4,6 m2.
Bijzonderheden:
- Woonoppervlakte 78,8 m² (BBMI meetrapport aanwezig);
- Ruim 3-kamer appartement, naar eigen smaak in te richten;
- Vlak bij de Sloterplas;
- Maandelijkse servicekosten €136,85 voor de woning en € 6,37 voor de berging;
- Erfpachtcanon afgekocht tot 1 september 2048;
- Woning is uitsluitend te koop met als doel: zelfbewoning (of ouders voor kinderen);
- Anti-speculatiebeding van 2 jaar van toepassing;
- Niet-zelfbewoningsclausule van toepassing;
- Projectnotaris: Spier en Hazenberg notariaat;
- Oplevering in overleg, kan snel.
Wij zijn enthousiast, jij ook?
Maak dan snel een afspraak voor een bezichtiging.
***English version***
Living in a prime location near the Sloterplas? This lovely, spacious 3-room apartment can be furnished entirely to your own taste and is available immediately!
Layout:
Via the elevator, you arrive at the wide gallery on the third floor. The spacious entrance provides access to all rooms of the apartment; you could also create an extra room here. The living room is spacious and situated on the balcony side; the large balcony faces northeast, where you can enjoy the morning sun. The kitchen can be accessed from two sides and is equipped with all necessary connections. Both bedrooms are very spacious, and the bathroom, featuring a walk-in shower, sink, and toilet, is located between the bedrooms. In addition to the separate toilet, there is also a laundry/boiler room in the hallway. The spacious storage unit is located in the basement.
Surroundings:
Located a stone's throw from the Sloterplas, where you can enjoy walking, running, picnicking, swimming, and practicing various water sports. The Sloterparkbad, with its outdoor pool and hotspot Strand Sloterplas, can also be found here. You don't have to go far to play sports either; Sportpark Ookmeer is nearby, where you can practice various sports including football and tennis. There is a riding school next to it. Within walking distance is the Osdorpplein shopping center, featuring various restaurants, supermarkets, the library, a Hema, delicious coffee, and a fitness center. The Meervaart theater is also located here.
The property is very easily accessible by both public transport and car. Tram line 17 is a five-minute walk from the home or just a two-minute bike ride. Bus lines 61 and 69 (Schiphol Plaza) are within walking distance; you can reach Schiphol within 25 minutes. By car, you can easily reach the A4, A9, or A10.
Homeowners' Association (VvE):
The property is part of an active Homeowners' Association. The monthly service charges amount to €136.85 for the apartment and €6.37 for the storage unit per month and include, among other things, a contribution to the building insurance and savings for future maintenance. The administration is handled by VvE Beheer Amsterdam. Relevant documents are available upon request.
Leasehold:
The property is situated on municipal leasehold land; the ground rent has been paid off until September 1, 2048.
Storage:
Spacious storage unit is located in the basement, approx. 4.6 m².
Particulars:
- Living area 78.8 m² (BBMI measurement report available);
- Spacious 3-room apartment, to be furnished to your own taste;
- Close to the Sloterplas;
- Monthly service costs €136.85 for the apartment and €6.37 for the storage unit;
- Ground rent paid off until September 1, 2048;
- Property is for sale exclusively for the purpose of: self-occupancy (or parents for children);
- Anti-speculation clause of 2 years applies;
- Non-self-occupancy clause applies;
- Project notary: Spier en Hazenberg Notariaat; - Completion date by mutual agreement, can be quick.
We are excited, are you?
Then make an appointment for a viewing soon.
