Woningomschrijving
Gelegen in een rustige wijk in Zuidoost een ruim en goed ingedeeld 4-kamerappartement van ca. 86 m2. Deze woning is gelegen op de begane grond en beschikt over een voortuin op het oosten en een heerlijke achtertuin op het westen en heeft een eigen berging.
***English version below***
De woning is centraal gelegen in de groene buurt Reigersbos. Metrostation Reigersbos ligt op loopafstand en hetzelfde geldt voor de bushalte. Voor de dagelijkse boodschappen kun je bij het winkelcentrum Reigersbos terecht. Voor visite is er voldoende (gratis) parkeergelegenheid. In de nabije omgeving tref je de natuurgebieden het Gein, Gaasperplas en het Nelson Mandelapark. Het sportpark Gaasperdam en het academisch ziekenhuis Amsterdam UMC (AMC) liggen ook in de nabijheid. De diverse uitvalswegen in de buurt (A2, A9 en A10) zijn uitstekend te bereiken.
Indeling:
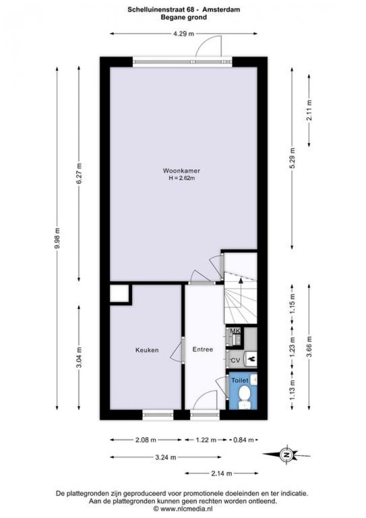
Eigen entree op de begane grond.
De hal biedt toegang tot de keuken, het toilet, de woonkamer en de trap naar de eerste verdieping.
De keuken is gelegen aan de voorzijde van de woning en beschikt over alle aansluitingen, het is mogelijk deze bij de woonkamer te betrekken. De woonkamer bevindt zich aan de achterkant van de woning en aangrenzend hieraan zit een tuin op het westen. Via de trap bereik je de eerste verdieping met een ruime slaapkamer aan de voorzijde van de woning en de twee kleinere slaapkamers aan de achterzijde. In het midden bevindt zich een badkamer voorzien van inloopdouche, wastafel, wasmachine aansluiting en voldoende ruimte voor een droger. Tevens is er op deze verdieping nog een kleine berging aanwezig.
Berging:
Dit is een (eigen) ruime berging onder in het complex (ca. 7 m²).
Tuin:
Riante voor en achter tuin waar je de gehele dag kunt genieten van de zon.
Bijzonderheden
- Direct beschikbaar;
- Bouwjaar 1981;
- Volledig dubbelglas,
- Cv-ketel Intergas (2011);
- Voormalige huurwoning van De Key (clausule "niet zelf bewoning" van toepassing);
- Woning is uitsluitend te koop voor zelfbewoning (of ouders voor eigen kinderen);
- Anti-speculatiebeding van 2 jaar van toepassing;
- Erfpachtgrond gemeente Amsterdam, vooruitbetaald tot 1 oktober 2051;
- VvE bijdrage: € 205,33,- (actieve, professionele VvE);
- Projectnotaris Spier en Hazenberg.
Ben je ook nieuwsgierig geworden?
Graag nodigen wij je uit deze woning eens van binnen te bekijken!
***English version***
Located in a quiet neighborhood in Southeast, a spacious and well-designed 4-room apartment of approx. 86 m2. This house is located on the ground floor and has a front garden facing east and a lovely back garden facing west and has its own storage room.
The house is centrally located in the green neighborhood of Reigersbos. Reigersbos metro station is within walking distance and the same applies to the bus stop. For daily shopping you can go to the Reigersbos shopping center. There is ample (free) parking for visitors. In the vicinity you will find the nature reserves Gein, Gaasperplas and the Nelson Mandelapark. The Gaasperdam sports park and the academic hospital Amsterdam UMC (AMC) are also nearby. The various highways in the area (A2, A9 and A10) are easily accessible.
Layout:
Private entrance on the ground floor.
The hall provides access to the kitchen, the toilet, the living room and the stairs to the first floor.
The kitchen is located at the front of the house and has all connections, it is possible to include it in the living room. The living room is located at the back of the house and adjacent to it is a garden facing west. Via the stairs you reach the first floor with a spacious bedroom at the front of the house and the two smaller bedrooms at the rear. In the middle there is a bathroom with walk-in shower, sink, washing machine connection and sufficient space for a dryer. There is also a small storage room on this floor.
Storage:
This is a (private) spacious storage room at the bottom of the complex (approx. 7 m²).
Garden:
Spacious front and back garden where you can enjoy the sun all day long.
Special features
- Immediately available;
- Year of construction 1981;
- Fully double glazed,
- Central heating boiler Intergas (2011);
- Former rental property of De Key (clause "not self-occupied" applies);
- Property is exclusively for sale for self-occupation (or parents for their own children);
- Anti-speculation clause of 2 years applicable;
- Leasehold land municipality of Amsterdam, prepaid until October 1, 2051;
- VvE contribution: € 205.33,- (active, professional VvE);
- Project notary Spier en Hazenberg.
Are you also curious?
We would like to invite you to view this house from the inside!
