Woningomschrijving
This is a Short Stay room for international students, that is available for a fixed rental period. No option to extend.
Interested? If you are a student or intern in Amsterdam, and live outside Amsterdam, you can apply. You must provide a proof of tenancy showing your current residence outside Amsterdam, and a proof of enrollment dated within the last month.
The photos provided give an impression of a similar furnished room; viewings are not possible. The approved candidate will receive a Short Stay lease agreement
General room information
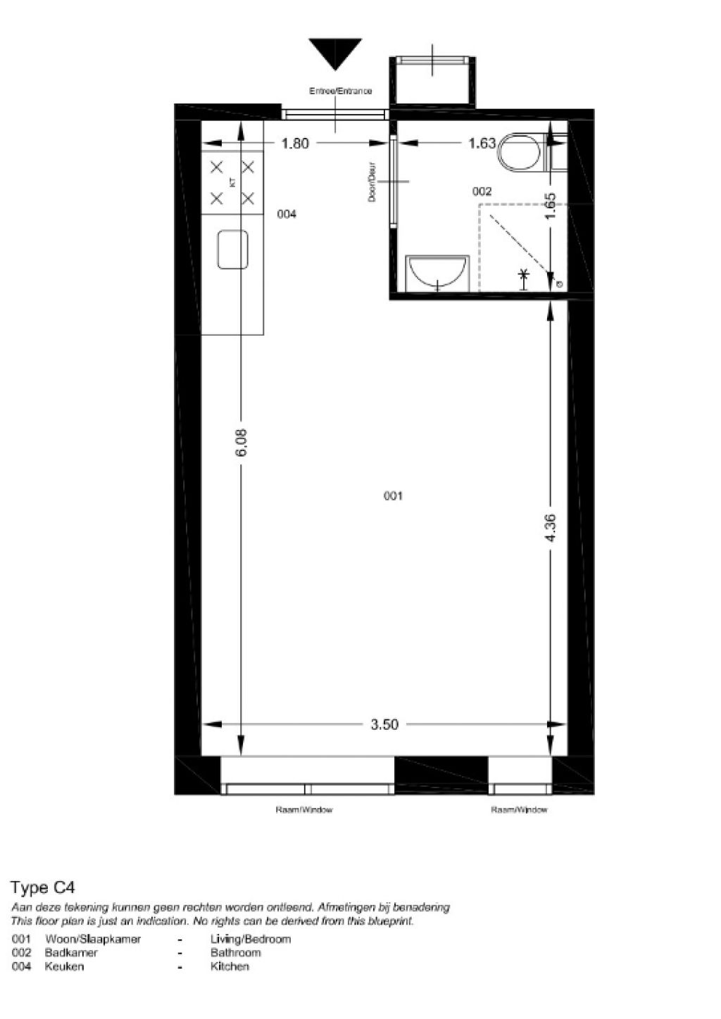
This is a private room with private facilities: you will not have to share the kitchen and bathroom with other residents. Room access works by phone NFC and App (keyless).
Laundry
There are laundry facilities available in the building. The usage is not included in the rent.
Furnishing
The modern building was built in 2017 and is fully furniture. Furniture might show signs of usage. Bedsize is 140 x 200.
Non-smoking
This building is 100% smoke-free and therefore this is a non-smoking room.
Location
The building is located close to a subway line, which connects to all parts of the city. A 20-minute bike ride away from the Roeterseiland campus.
Short Stay App
Take a look at our Lieven De Key Short Stay app for more information, for example about room inventory.
