Woningomschrijving
FIJN APPARTEMENT!
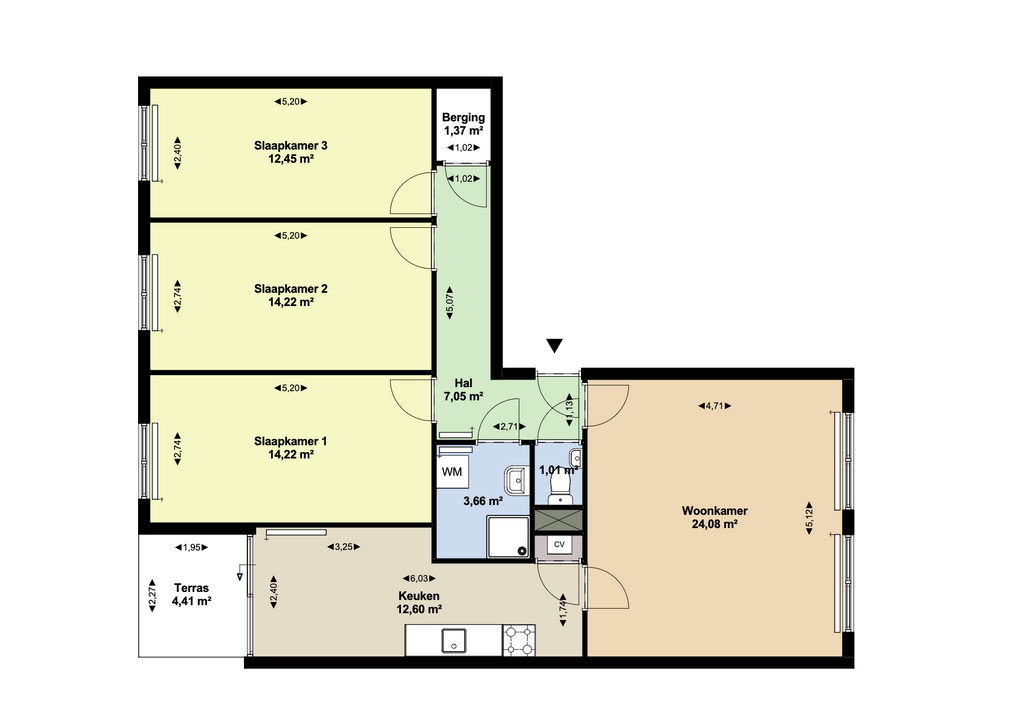
Geweldig 4-kamerappartement van circa 95 m2 gelegen op de tweede verdieping met een balkon gelegen op het zuidoosten.
OMGEVING:
De woning is gelegen aan de achterzijde van de Sarphatistraat, een leuke locatie in het centrum van Amsterdam, ter hoogte van de Hoogte Kadijk. Het openbaar vervoer is in ruime mate beschikbaar voor u. Tram 1, 7 en 19 stoppen op 3 minuten lopen. Het metrostation is ook op enkele minuten lopen en diverse buslijnen brengen u naar alle delen van de stad. Met de fiets bent u in een mum van tijd op de populaire uitgaanspleinen.
INDELING:
Entree op de tweede verdieping, aan de voorzijde de woonkamer met half-open keuken voorzien van een standaard keukenblok en toegang tot het balkon gelegen op het zuidoosten, de badkamer is voorzien van een ligbad met douche en een wastafel, separaat toilet met een fonteintje en drie slaapkamers aan de achterzijde.
Separate berging gelegen in de onderbouw.
BIJZONDERHEDEN:
- De woning wordt verhuurd "as is";
- De woning wordt zonder stoffering opgeleverd;
- Geen verhuur aan studenten!;
- De servicekosten bedragen circa €. 41,61 per maand;
- Garantstellingen worden niet geaccepteerd;
- De inkomenseis is: het (gezamenlijk) NETTO maandinkomen moet minimaal 2,5x de maandhuur bedragen;
- De waarborg is € 1500,-;
- De woning mag door maximaal 2 VOLWASSENEN bewoond worden (kinderen zijn welkom);
- De huur is exclusief gas, water en licht;
- Uittreksel bevolkingsregister is verplicht in het aanvraagdossier;
- Verhuurder rekent eenmalig € 16,50 contractkosten;
- Alle maten op de plattegrond zijn indicatief;
- Oplevering per direct, verhuur voor minimaal een jaar;
- De verhuurder/onze opdrachtgever kan zelf kiezen met welke partij zij een huurcontract afsluit (contractvrijheid). Zij kan er ook voor kiezen om geen huurcontract af te sluiten.
--------------------------------------------------------------------------------------------------------------------------------------------------
ENGLISH TRANSLATION:
Please note our terms & conditions first!
PLEASE NOTE:
- The house is rented "as is";
-The apartment will be delivered unfurnished;
- No students allowed;
- The monthly service costs are € 41,61 each month;
- No financial guarantees allowed;
- Your (combined) monthly NET income has to be at least 2,5 times the rent;
- 1500,- EUR as warrant;
- Maximum of two adults (children are welcome);
- Gas, water and electricity are excluded;
- Available immediately, contract of a one year minimum;
- Excerpt of population register needed for application;
- All measurements on the floor plan are indicative;
- The land lord charges one-time € 16,50 contract costs;
- The landlord/our client can choose with which party to sign a rental agreement (freedom of contract). They can also choose not to sign a lease.
!!No exceptions will be made!!
