Woningomschrijving
Top woning!
Royaal 2-laags appartement met 4 slaapkamers gelegen aan de Nieuwe Achtergracht!
OMGEVING:
Deze woning ligt pal in het centrum van Amsterdam, in het midden tussen het Waterlooplein en het Weesperplein. Het Koninklijk Theater Carré en Artis liggen allemaal in de directe omgeving dus er is genoeg te doen in deze buurt! De bereikbaarheid met het openbaar vervoer is uitstekend, met verscheidene haltes en lijnen bij onder andere het Waterlooplein, Weesperplein en de Plantage Middenlaan. Bussen, trams en metro's rijden hiervandaan naar alle windstreken!
INDELING:
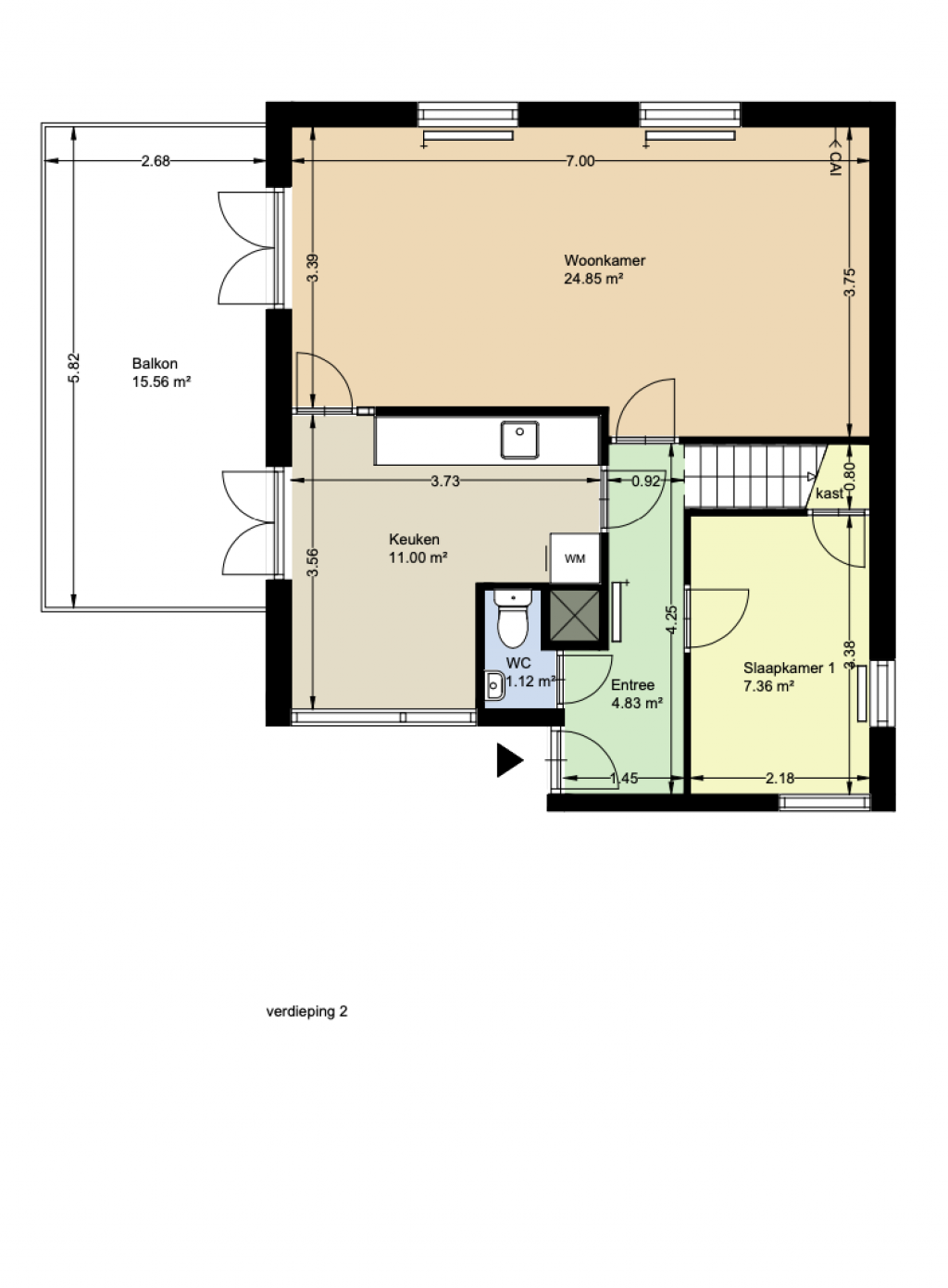
Entree op de derde verdieping, dichte keuken voorzien van een standaard keukenblok, ruime woonkamer aan de voorzijde met toegang tot het dakterras, separaat toilet met een fonteintje en een slaapkamer aan de achterzijde, via de interne trap naar de vierde verdieping.
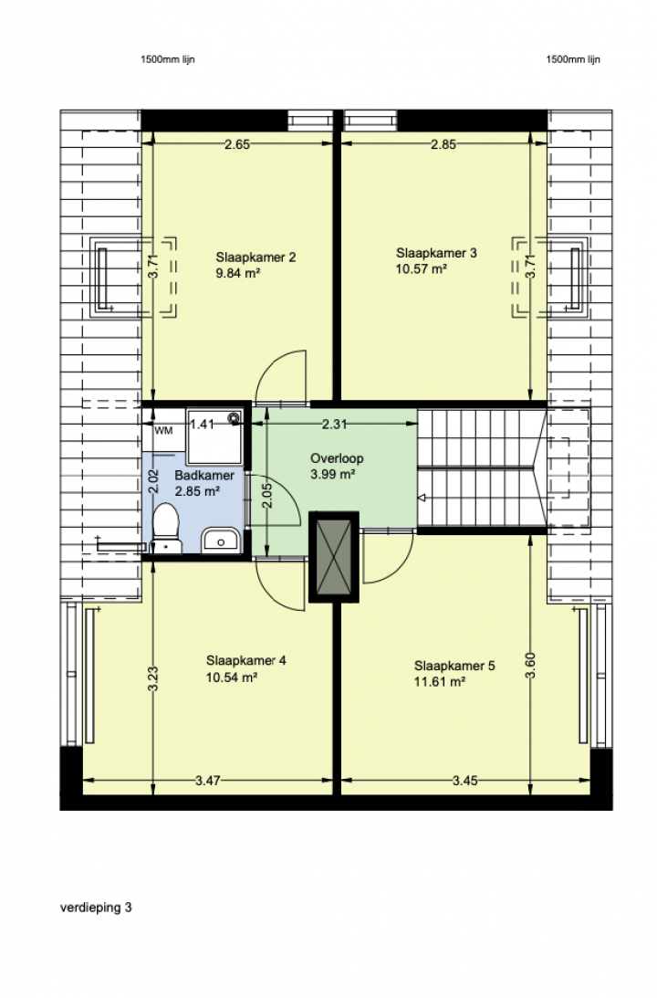
Vierde verdieping: overloop, twee slaapkamers aan de voorzijde, twee slaapkamers aan de achterzijde en de badkamer voorzien van een douche, wastafel en (tweede) toilet.
Gedeelde berging op de begane grond.
BIJZONDERHEDEN:
- De woning wordt verhuurd "as is";
- Geen verhuur aan studenten!;
- De servicekosten bedragen circa € 35,31 per maand;
- Garantstellingen worden niet geaccepteerd;
- De inkomenseis is: het (gezamenlijk) NETTO maandinkomen moet minimaal 2,5x de maandhuur bedragen;
- 1500,- EUR waarborg;
- De woning mag door maximaal 2 VOLWASSENEN bewoond worden (kinderen zijn welkom);
- De huur is exclusief gas, water en licht;
- Uittreksel bevolkingsregister is verplicht in het aanvraagdossier;
- Verhuurder rekent eenmalig € 16,50 contractkosten;
- Alle maten op de plattegrond zijn indicatief;
- Oplevering per direct, verhuur voor minimaal een jaar;
- De verhuurder/onze opdrachtgever kan zelf kiezen met welke partij zij een huurcontract afsluit (contractvrijheid). Zij kan er ook voor kiezen om geen huurcontract af te sluiten.
--------------------------------------------------------------------------------------------------------------------------------------------------
ENGLISH TRANSLATION:
Please note our terms & conditions first!
PLEASE NOTE:
- The house is rented "as is";
- No students allowed;
- The monthly service costs are € 35,31 each month;
- No financial guarantees allowed;
- Your (combined) monthly NET income has to be at least 2,5 times the rent;
- 1500,- EUR as warrant;
- Maximum of two adults (children are welcome);
- Gas, water and electricity are excluded;
- Available immediately, contract of a one year minimum;
- Excerpt of population register needed for application;
- All measurements on the floor plan are indicative;
- The land lord charges one-time € 16,50 contract costs;
- The landlord/our client can choose with which party to sign a rental agreement (freedom of contract). They can also choose not to sign a lease.
!!No exceptions will be made!!
