Woningomschrijving
TUIN TUIN TUIN!
Perfect ingedeeld 3-kamer appartement van ca. 65m2 gelegen op de begane grond met een tuin! De woning is gelegen op eigen grond. In 2023/2024 is het pand gerenoveerd.
Omgeving:
De Camperstraat is een rustige straat in een mooi stukje Oost, om de hoek van het Oosterpark dat slechts een paar minuten lopen is. De dagelijkse boodschappen doe je in de Eerste Oosterparkbuurt, op de Dappermarkt of bij het vernieuwde winkelcentrum Oostpoort. De gezellige Middenweg en tal van trendy winkeltjes, barretjes en restaurants liggen op korte fietsafstand. Park Frankendael is eveneens op fietsafstand van de woning te vinden. Binnen een kwartier fiets je naar het centrum van Amsterdam.
Parkeren kan voor de deur, bewoners komen in aanmerking voor een bewonersvergunning. Er is voldoende parkeergelegenheid voor de deur en in de buurt. De uitvalswegen zijn snel en goed bereikbaar en op loopafstand bevinden zich metro- en tramhaltes van o.a. lijnen 1, 3 en 50,51, 53 en 54.
Indeling:
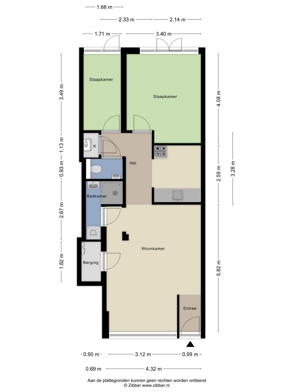
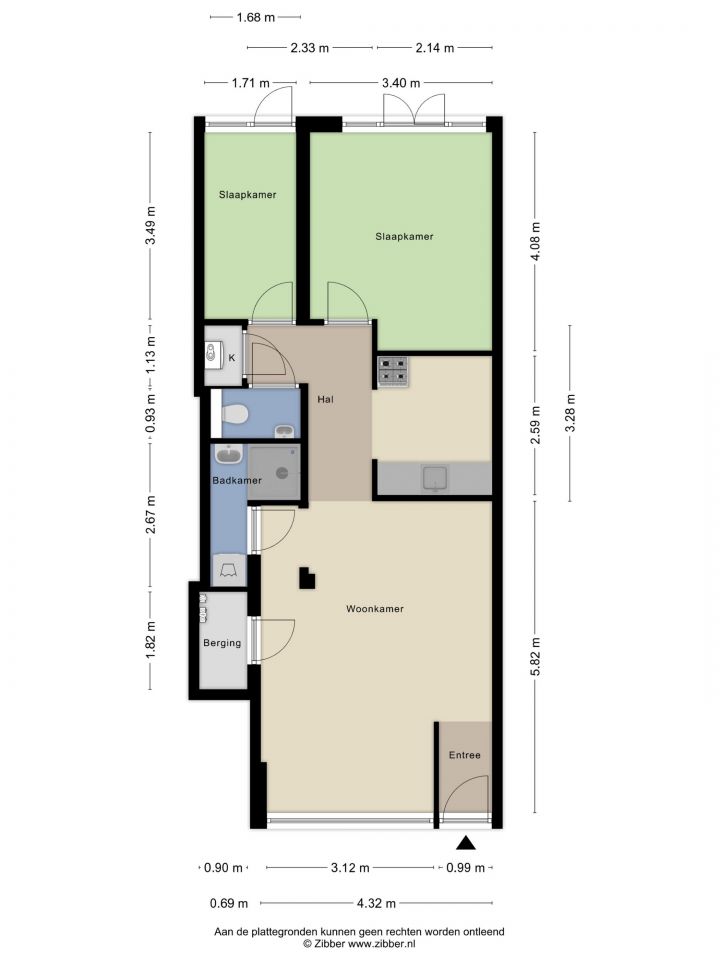
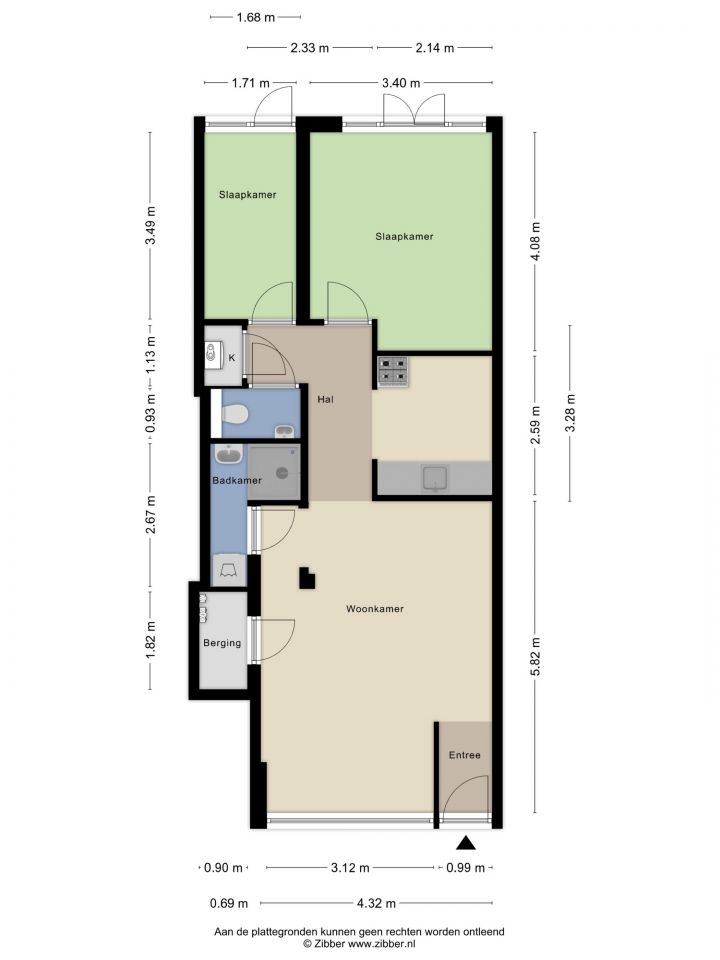
Entree op de begane grond; de lichte woonkamer aan de voorzijde, half open keuken (dient nog geplaatst te worden door de koper), een separaat toilet met een fonteintje, de badkamer is voorzien van een douche en een wastafel, inpandige kast met de C.V-ketel, twee slaapkamers aan de achterzijde. Beide met toegang tot de tuin.
Bijzonderheden:
- Gelegen op EIGEN GROND, geen erfpacht;
- Tuin aan de achterzijde;
- Energielabel A+;
- Gezond en professioneel VvE beheer, de maandelijkse servicekosten bedragen € 188,28;
- Verkoper verkoopt met een antispeculatiebeding van 2 jaar;
- Vaste project notaris: Spier en Hazenberg notarissen;
- Clausule eigen bewoning van toepassing. Ouders mogen wel voor hun kinderen kopen!;
- Verkoper heeft het object zelf nooit feitelijk bewoond;
- Oplevering in overleg, kan spoedig;
- De plattegrond betreft een indicatie van het appartement. Aan de opgegeven maten kunnen geen rechten worden ontleend.
----------------------------------------------------------
English translation:
GARDEN GARDEN GARDEN!
Perfectly laid out 3-room flat of approx. 65m2 located on the ground floor with a garden! The property is located on own ground. The building was renovated in 2023/2024.
Surroundings:
Camperstraat is a quiet street in a beautiful part of Amsterdam East, around the corner from Oosterpark, which is only a few minutes' walk away. You can do your daily shopping in the Eerste Oosterparkbuurt, at the Dappermarkt or at the renovated Oostpoort shopping centre. The lively Middenweg and numerous trendy shops, bars and restaurants are a short bike ride away. Park Frankendael is also within cycling distance of the property. The centre of Amsterdam is a 15-minute cycle ride away.
Parking is available in front of the door, and residents are eligible for a resident's permit. There is ample parking in front of the door and in the neighbourhood. The main roads are quickly and easily accessible, and metro and tram stops for lines 1, 3, 50, 51, 53 and 54, among others, are within walking distance.
Layout:
Entrance on the ground floor; bright living room at the front, semi-open kitchen (to be installed by the buyer), separate toilet with washbasin, bathroom with shower and washbasin, built-in cupboard with central heating boiler, two bedrooms at the back. Both with access to the garden.
Details:
- Located on OWN GROUND, no leasehold;
- Garden at the back;
- Energy label A+;
- Healthy and professional owners' association management, the monthly service costs are €188,28;
- Seller sells with a 2-year anti-speculation clause;
- Fixed project solicitor: Spier en Hazenberg solicitors;
- Owner-occupancy clause applies. Parents are allowed to buy for their children!;
- The seller has never actually lived in the property;
- Completion in consultation, can be soon;
- The floor plan is an indication of the flat. No rights can be derived from the specified dimensions.
