Woningomschrijving
TOP WONING MET DAKTERRAS.
Heerlijk licht 3-kamer appartement van ca. 75 m2 gelegen op de 1e verdieping met een dakterras van ca. 25 m2 en een berging in de onderbouw!
Omgeving:
In de omgeving is er volop leuke horeca, zoals Roest, Frank’s Smokehouse restaurant, De Biertuin, Bar Botanique, Hannekes Boom en Brouwerij ’t IJ dat is gevestigd in de molen. Vanuit je voordeur stap je binnen 50 meter de Albert Heijn supermarkt binnen. Zowel het Rembrandtplein, het Centraal Station, het Scheepvaartmuseum, Artis en de gezellige Dappermarkt liggen op loopafstand.
Bereikbaarheid:
Aan de Wittenburgergracht en de Czaar Peterstraat, treft u diverse bus- en tramverbindingen (bus 22 en tram 7). Centraal Station en station Muiderpoort zijn op wandelafstand gelegen. Ook de verbinding met de uitvalswegen is goed, via de Piet Heintunnel bent u binnen enkele minuten op de Ringweg A-10, A-1 of A-2. Parkeren kan gewoon voor de deur met een vergunning. Daarvoor is momenteel geen wachtlijst.
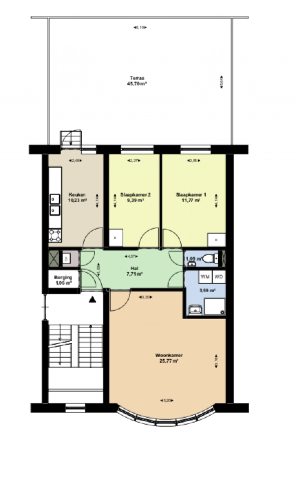
INDELING
1e verdieping: entree, hal, bergruimte, de badkamer met een douche, wastafel en de wasmachine aansluiting, separaat toilet met fonteintje, aan de voorzijde de woonkamer, een dichte keuken voorzien van een standaarde keukenblok en twee slaapkamers aan de achterzijde en een ruim dakterras.
Aparte berging gelegen in de onderbouw van circa 3 m2.
BIJZONDERHEDEN
* Gezonde en professioneel beheerde VvE, de maandelijkse servicekosten bedragen €. 128,94
* De erfpachtcanon is afgekocht tot en met 31 maart 2039.
* Oplevering in overleg, kan spoedig.
* Vaste projectnotaris: Spier en Hazenberg notarissen.
* Verkoper verkoopt met een antispeculatiebeding van 2 jaar.
* Verkoper heeft het object zelf nooit feitelijk bewoond.
* Clausule eigen bewoning van toepassing. Ouders mogen wel voor hun kinderen kopen!
* Aan de opgegeven maten op de plattegrond kunnen geen rechten worden ontleend.
