Woningomschrijving
Superleuk, licht 2-kamer appartement op de eerste verdieping met uitzicht op de Le Mairegracht is nu beschikbaar. Met een slaapkamer, royale woonkamer met uitzicht op het water en balkon op het zuiden, is dit er weer één om niet te missen!
***English version below***
De Nova Zemblastraat ligt op een zeer gunstige locatie in Stadsdeel West. Op loopafstand van onder andere de Spaarndammerstraat met al zijn leuke restaurants, cafeetjes en winkels, de Houthavens en het Westerpark. Alle gemakken zijn binnen handbereik. Daarnaast sta je binnen 10 minuten fietsen midden in de Jordaan en op de Dam. Ook het Centraal Station is met de fiets zo bereikt en met enkele bushaltes op loopafstand, kun je overal komen.
Indeling:
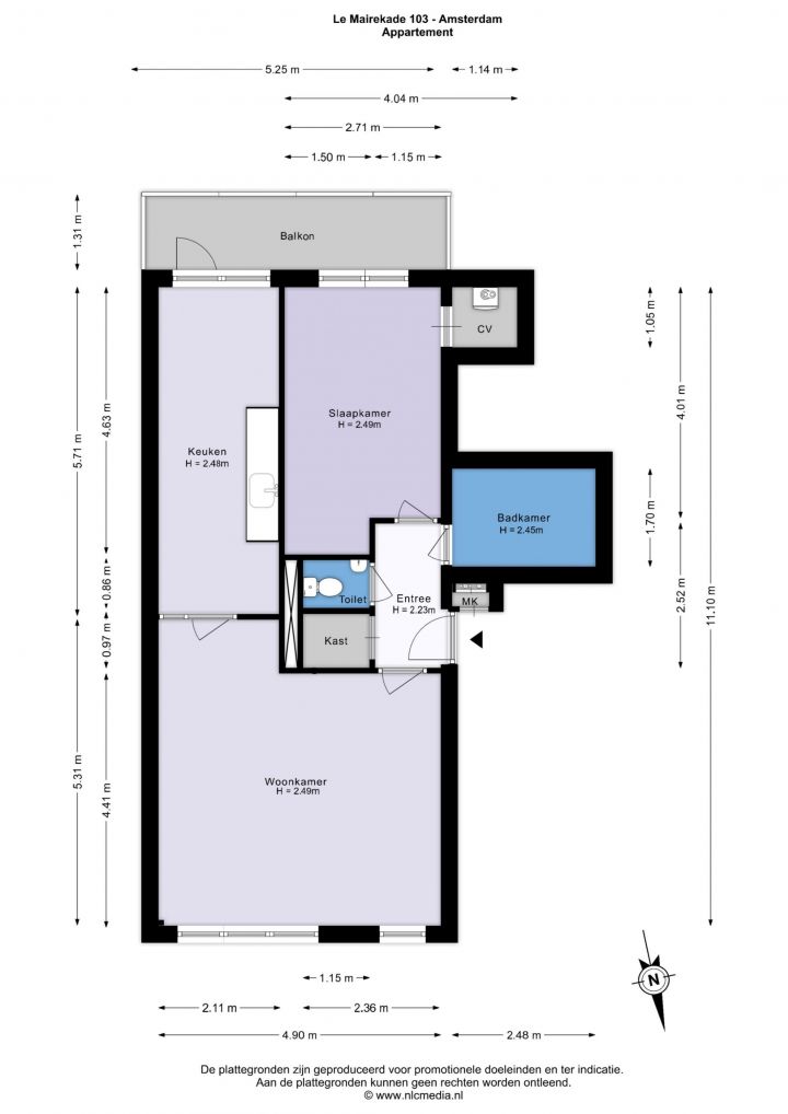
Gezamenlijke entree met trappenhuis, op de eerste verdieping via het portiek toegang tot woning en de meterkast. Je komt binnen in de gang met toegang tot het separate toilet, de bergingen de badkamer. De badkamer is voorzien van alle aansluitingen, hier kun je de badkamer van je dromen realiseren. Vanuit de gang kom je binnen in een zeer lichte woonkamer en een ruime slaapkamer. Vanuit de woonkamer heb je uitzicht op het Le Mairegracht, vanuit de woonkamer heb je ook toegang tot de dichte keuken, de keuken is voorzien een eenvoudig keukenblok met bovenkasten. Vanuit de keuken heb je ook toegang tot het balkon, welke is gelegen op het zuiden. De slaapkamer is gelegen aan de achterzijde, deze is ruim van opzet en is voorzien van een kast met daarin de cv-ketel (Intergas uit 2020).
Op de begane grond is nog een eigen berging te vinden. Het appartement is nog naar eigen inzicht af te werken, de vloer dient zelf nog gelegd te worden..
Berging:
De woning beschikt over een berging van ca. 5 m² die is gelegen in de onderbouw.
VvE:
De woning maakt deel uit van een actieve VvE. De maandelijkse servicekosten voor de woning bedragen € 126,16 en bevatten o.a. een bijdrage voor de opstalverzekering en sparen voor toekomstig onderhoud.
Grond:
De woning is gelegen op gemeentelijke erfpachtgrond. De canon is vooruitbetaald tot en met 15-06-2035. Op dit recht zijn de algemene erfpachtbepalingen van het jaar 2000 van toepassing.
Bijzonderheden
- Per direct beschikbaar;
- Woonoppervlakte: ca. 61 m² (meetrapport aanwezig);
- Voormalige huurwoning van De Key;
- Project notaris, Spier en Hazenberg notarissen;
- Anti-speculatiebeding van 2 jaar van toepassing;
- Niet-zelfbewoningsclausule van toepassing;
- De woning wordt verkocht en geleverd zoals deze er nu bij staat.
- Gehele woning is voorzien van dubbel glas;
- Geheel naar eigen smaak te verbouwen;
- Uitsluitend te koop voor zelfbewoning (of ouders voor kinderen);
- Actieve VvE, maandelijkse bijdrage € 126,16;
- Erfpacht afgekocht tot en met 15-06-2035;
- Parkeren: vergunningenstelsel op de openbare weg. Voor meer informatie kijk op website van de gemeente Amsterdam;
- Voorrangregeling voor sociale huurders van toepassing, voor meer informatie verwijzen wij je door naar de website van woonstichting Lieven de Key;
- Oplevering kan snel.
Hebben wij jouw interesse ook gewekt?
Dan nodigen we je graag uit deze woning eens van binnen te bekijken.
Deze informatie is door ons met de nodige zorgvuldigheid samengesteld. Onzerzijds wordt echter geen enkele aansprakelijkheid aanvaard voor enige onvolledigheid, onjuistheid of anderszins, dan wel de gevolgen daarvan. Alle opgegeven maten en oppervlakten zijn slechts indicatief.
De Meetinstructie is gebaseerd op de BBMI. De Meetinstructie is bedoeld om een meer eenduidige manier van meten toe te passen voor het geven van een indicatie van de gebruiksoppervlakte. De Meetinstructie sluit verschillen in meetuitkomsten niet volledig uit, door bijvoorbeeld interpretatieverschillen, afrondingen of beperkingen bij het uitvoeren van de meting
***English version***
A super nice, bright 2-room apartment on the first floor overlooking Le Mairegracht is now available. With a bedroom, a spacious living room overlooking the water, and a south-facing balcony, this is another one not to be missed!
Nova Zemblastraat is in a very convenient location in the West district. Within walking distance of Spaarndammerstraat with all its lovely restaurants, cafes, and shops, the Houthavens, and Westerpark. All amenities are within easy reach. Furthermore, you can reach the heart of the Jordaan district and Dam Square within 10 minutes by bike. Central Station is also easily accessible by bike, and with several bus stops within walking distance, you can get everywhere.
Layout:
Shared entrance with staircase. On the first floor, access to the apartment and the meter cupboard is via the porch. You enter into the hallway with access to the separate toilet, storage units, and bathroom. The bathroom is equipped with all plumbing fixtures, allowing you to create the bathroom of your dreams. From the hallway, you enter a very bright living room and a spacious bedroom. The living room overlooks Le Mairegracht canal and also provides access to the closed kitchen, which features a simple unit with wall units. The kitchen also provides access to the south-facing balcony. The spacious bedroom is located at the rear of the building and includes a cupboard housing the central heating boiler (Intergas, 2020).
A private storage unit is located on the ground floor. The apartment can be finished to your own specifications; the flooring still needs to be laid.
Storage:
The apartment includes a storage unit of approximately 5 m² located in the basement.
Homeowners' Association:
The apartment is part of an active Homeowners' Association (VvE). The monthly service charges for the apartment are €126.16 and include, among other things, a contribution to the building insurance and savings for future maintenance. Land:
The property is located on municipal leasehold land. The ground rent is paid in advance until June 15, 2035. The general leasehold provisions of the year 2000 apply to this right.
Special Features
- Available immediately;
- Living area: approx. 61 m² (measurement report available);
- Former rental property of De Key;
- Project notary, Spier en Hazenberg notaries;
- Anti-speculation clause of 2 years applies;
- Non-owner-occupancy clause applies;
- The property is sold and delivered as is.
- The entire property has double glazing;
- Can be renovated entirely to your own taste;
- Only for sale for owner-occupancy (or parents for children);
- Active homeowners' association, monthly fee €126.16; - Leasehold bought off until June 15, 2035;
- Parking: permit system on public roads. For more information, see the website of the Municipality of Amsterdam;
- Priority scheme for social housing tenants applies; for more information, please visit the website of housing association Lieven de Key;
- Delivery can be done quickly.
Have we piqued your interest?
Then we would like to invite you to view this property from the inside.
We have compiled this information with due care. However, we accept no liability for any incompleteness, inaccuracy, or otherwise, or for the consequences thereof. All stated dimensions and surface areas are for information purposes only.
The Measurement Instructions are based on the BBMI (Measuring Instructions for Housing). The Measurement Instructions are intended to provide a more consistent measuring method for providing an indication of the usable surface area. The Measurement Instruction does not completely exclude differences in measurement results, for example due to differences in interpretation, rounding or limitations in performing the measurement.
