Woningomschrijving
HEERLIJKE WONING!
Charmant 4-kamer appartement van circa 89m2 gelegen op de derde en vierde verdieping met een zonnig terras op een top locatie!
OMGEVING:
De Oetgensstraat is gelegen in het kloppend hart van oost. Deze buurt staat garant voor gezellige eetcafés, restaurants en met een diversiteit aan winkels zit u hier dus perfect. Voor recreatie bent u in deze buurt ook aan het juiste adres, zo bevinden zich op steenworp afstand het Oosterpark, Tropenmuseum, Artis en nog veel meer bezienswaardigheden. Met een ruime keuze aan openbaar vervoer (o.a. Tramlijn 3, Metro 50, 51, 54 en en NS-station Muiderpoort), voldoende parkeergelegenheid en diverse uitvalswegen in de buurt is de bereikbaarheid uitstekend. Mede door deze ligging is de straat zeer in trek.
INDELING:
Via het gemeenschappelijk trappenhuis naar de derde verdieping; entree, de woonkamer met toegang tot het balkon aan de voorzijde, de dichte keuken voorzien van een standaard keukenblok aan de achterzijde, separaat toilet met een fonteintje, via de interne trap naar de vierde verdieping.
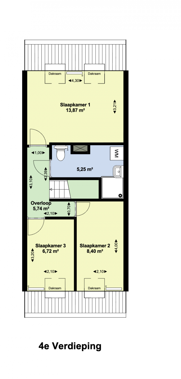
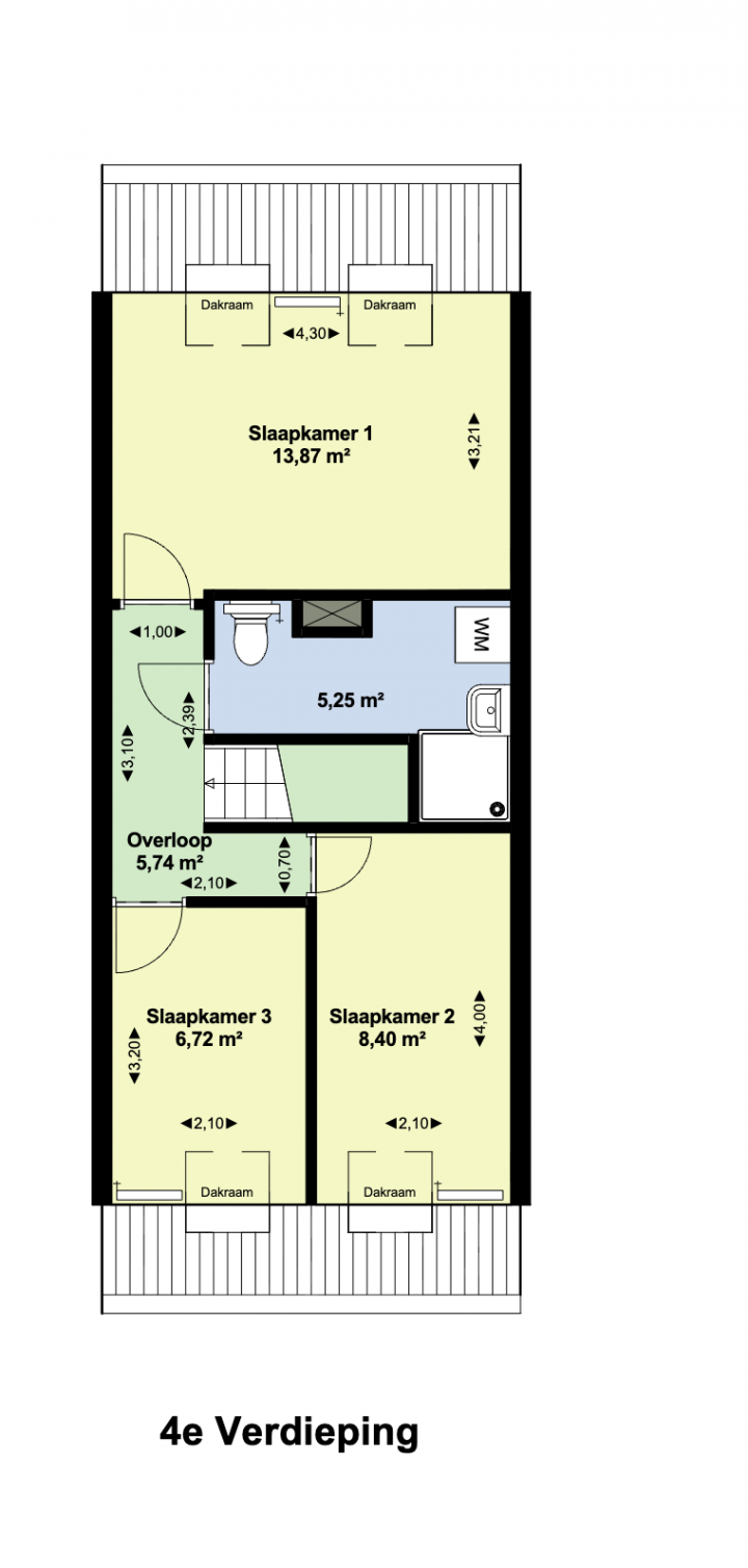
Vierde verdieping; overloop, twee slaapkamers aan de voorzijde, een slaapkamer aan de achterzijde, de badkamer is voorzien van een douche, wastafel en (tweede) toilet.
De berging is gelegen in de onderbouw.
BIJZONDERHEDEN:
- De woning wordt verhuurd "as is";
- Geen verhuur aan studenten!;
- De servicekosten bedragen circa €. 37,26 per maand;
- Garantstellingen worden niet geaccepteerd;
- De inkomenseis is: het (gezamenlijk) NETTO maandinkomen moet minimaal 2,5x de maandhuur bedragen;
- 1500,- EUR waarborg;
- De woning mag door maximaal 2 VOLWASSENEN bewoond worden (kinderen zijn welkom);
- De huur is exclusief gas, water en licht;
- Uittreksel bevolkingsregister is verplicht in het aanvraagdossier;
- Verhuurder rekent eenmalig € 16,50 contractkosten;
- Alle maten op de plattegrond zijn indicatief;
- Oplevering per direct, verhuur voor minimaal een jaar;
- De verhuurder/onze opdrachtgever kan zelf kiezen met welke partij zij een huurcontract afsluit (contractvrijheid). Zij kan er ook voor kiezen om geen huurcontract af te sluiten.
--------------------------------------------------------------------------------------------------------------------------------------------------
ENGLISH TRANSLATION:
Please note our terms & conditions first!
PLEASE NOTE:
- The house is rented "as is";
- No students allowed;
- The monthly service costs are € 37,26 each month;
- No financial guarantees allowed;
- Your (combined) monthly NET income has to be at least 2,5 times the rent;
- 1500,- EUR as warrant;
- Maximum of two adults (children are welcome);
- Gas, water and electricity are excluded;
- Available immediately, contract of a one year minimum;
- Excerpt of population register needed for application;
- All measurements on the floor plan are indicative;
- The land lord charges one-time € 16,50 contract costs;
- The landlord/our client can choose with which party to sign a rental agreement (freedom of contract). They can also choose not to sign a lease.
