Woningomschrijving
This is a Short Stay room for international students, that is available for a fixed rental period. No option to extend.
Interested? If you are a student or intern in Amsterdam, and live outside Amsterdam, you can apply. You must provide a proof of tenancy showing your current residence outside Amsterdam, and a proof of enrollment dated within the last month.
The photos provided give an impression of a similar furnished room; viewings are not possible. The approved candidate will receive a Short Stay lease agreement.
Please note that this is a couples room, intended to be occupied by a couple.
General room information
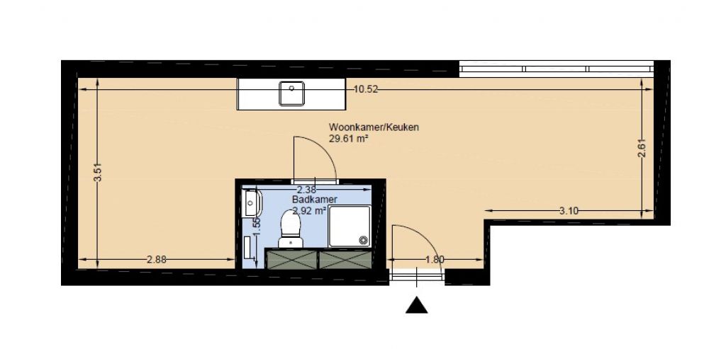
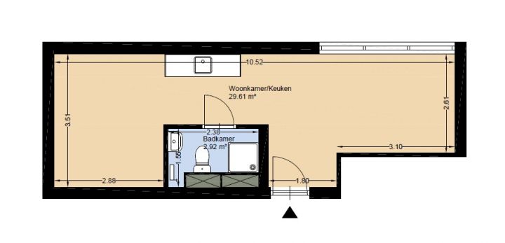
This is a couples room with private facilities: the two of you will not have to share the kitchen and bathroom with other residents. Bed measurements are actually 180x200. This is a keyless room: the tenant enters the building and room with their smartphone. Please be aware that the pictures are an impression of what the room might look like.
Building information
Built in 2021, this building is eco-friendly: warm water is limited to 30 minutes a day, per resident. Please check out our app for more information.
Laundry facilities
Laundry facilities are available in the building.
Non-smoking
This is a non-smoking room and building.
Location
This building is located in the north of Amsterdam. Grocery store and bus station are nearby, as well as the ferry that will take you to the city center within 10 minutes.
Short Stay App
Take a look at our Lieven De Key Short Stay app for more information, for example about room inventory.
